625048, Россия, г. Тюмень, ул. М. Горького, 44 (офисный центр), 5-й этаж, офис 507
8 (3452) 93-80-49, 8 (3452) 55-24-23

Главная
Новости
Земельный участок под ИЖС
Строительство домов под ключ
О проекте
География объекта
Каталог домов
Очередность застройки
Акции и скидки
Архитектура проекта
Стоимость
Корпоративные программы
Процесс строительства
Контакты
ООО «КапиталПроект» Координатор проекта

Серия ЛТ-3-1

Серия ЛТ-3-1 "МОДЕРН 100"

Серия ЛТ-3-1

Застройка коттеджного поселка "Серебряная подкова" в Нижнетавдинскам районе в границах деревни Московка в 30 км. от Тюмени по Велижанскому тракту.

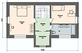
Загородный жилой дач для круглогодичного проживания Здание одноэтажное с мансардным этажом и двухскатной кровлей.

Основные строительные материалы и конструкции. Конструктивная схема здания стеновая с наружными многослойными несущими ограждающими стенами общей толщиной 500 мм. несущий слой керамзитабетонные блоки с эффективным утеплителем пенопояистирол, природный камень; фундамент - монолитный железобетонный; устройство крыши - деревянная стропильная конструкция, покрытие кровли металлочерепица.




Серия ЛТ-3-1 Серия ЛТ-3-1 Серия ЛТ-3-1 Серия ЛТ-3-1
 
8 (3452) 93 80 49, 55 24 23